Evergreen

2525 Eversyde Ave SW

Proposed Project

To maximize the City owned land at 2525 Eversyde Avenue SW, HomeSpace is proposing the construction of 45 two and three-bedroom wood-frame townhomes for families at risk or currently experiencing homelessness. These homes are thoughtfully designed to create a family-oriented development that interweaves residential and community spaces to encourage interaction and foster a sense of community. HomeSpace is working closely with trusted experts to create designs that enhance the character of the surrounding neighbourhood.

The townhomes will be built in blocks of 4-10 units, forming a total of 7 residential buildings along a single-lane cul-de-sac with two entry/exit points on Eversyde Avenue SW. On the north end of the parcel, we are envisioning an 4,300-square-foot amenity space that will be available for families and agency staff use, along with a community garden located in the centre of the property.

The unit numbers and project layout are subject to change, as they will be finalized during the Development Permit stage.

To facilitate non-market housing units, HomeSpace will undertake the following:

  • Apply for a land-use change to rezone the site to M-G, allowing for low-density multi-residential development adjacent to low-density areas.

  • Apply concurrently for a Development Permit.

  • Apply for a Building Permit after the Development Permit is approved.

This development prioritizes a community-focused atmosphere, with a mix of surface and parallel parking options to maximize green space. We are committed to creating an energy-efficient community, with our townhomes performing at least 20% above current energy codes. Ten units are also designated as barrier-free for improved accessibility and inclusivity.

Location Context

As Evergreen and Calgary continue to grow and evolve, we aim to support this growth thoughtfully. This development is expected to integrate seamlessly with the surrounding low and medium-density residences, ensuring appropriate transitions in building height and scale.

The site is within an area that encourages population growth and medium-density development, fostering walkable spaces connected to nearby transit services and employment options. In addition to the site’s proximity just south of the the south-west BRT corridor, there are also several bus routes surrounding the development, including:

  • 162 Ave & 24 St

  • 162 Ave & Shops of Bridlewood

  • 24 St & Bridlcrest Dr

  • Everridge Dr & Everridge Way

  • Everridge Dr & 24 St

  • Everridge Dr & Evermeadow Gate

Amenity Access

This site is strategically located to offer convenient access to a range of amenities within the Evergreen community. Directly across the street, a playground and green space provide opportunities for residents to enjoy an active, connected, and family-friendly lifestyle. The surrounding neighbourhood is also well-served by nearby retail amenities, including grocery stores, banks, restaurants, and other essential services.

Its proximity to both daily conveniences and public transportation fosters strong connectivity, reduces vehicle dependence, and helps ease neighbourhood congestion — allowing residents to meet their everyday needs without prohibitively long commutes.

Why M-G?

The site at 2525 Eversyde Avenue SW is well-positioned to support the goals of Calgary’s Municipal Development Plan (MDP), the Calgary Transportation Plan (CTP). Located in a pre-established neighbourhood near the Southwest Bus Rapid Transit (BRT) corridor (MAX Yellow) and major community amenities, the site benefits from existing infrastructure, schools, parks, and retail services. This makes it an ideal location for low to medium-density housing development that supports a complete, connected, and sustainable community.

Multi-Residential – At Grade Housing (M-G) allows for multi-residential development, such as townhomes, that integrate well within established residential areas. This zoning supports gentle densification while maintaining compatibility with surrounding low-density homes. M-G housing must provide at-grade pedestrian access for all units, outdoor spaces for social interaction and, landscaping that complements the development. These elements improve livability and community integration.

The site is also situated among existing low- to medium-density residential development. Townhouses and rowhouses already are common building types in many Calgary communities and function well in established neighbourhoods.

By adding affordable townhomes within walking distance of schools, parks, and neighbourhood services, the project contributes to Calgary’s objective of expanding housing choice and affordability across all communities. The site’s existing infrastructure also optimizes public investment in utilities and transit, ensuring development aligns with Calgary’s vision for efficient and sustainable urban expansion. The M-G zone provisions for appropriate density and amenity access— making it an ideal choice for continuing the ongoing evolution of this area into a vibrant, diverse community.

This development supports the five key directions of the MDP by: 

  1. Balancing growth between established and greenfield communities.

  2. Providing more choice within complete communities.

  3. Directing land use changes within a framework of Activity Centres and Main Streets.

  4. Linking land use decisions to transit access.

  5. Supporting the development of Complete Streets.

HomeSpace is always striving to be adaptable, ensuring our projects fit not only the community of today but also the communities of the future. In keeping with this goal, the proposed development is also in alignment with the final draft of the proposed Calgary Plan.

Our Partners

NOTE: Onsite supportive care will be provided by a social service agency chosen later into the development process through. For a complete list of our current agency partners, please see here.

Proposed Designs

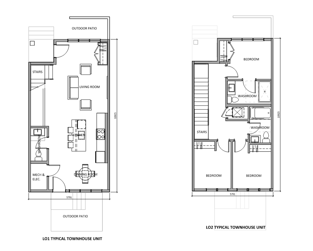
Fig 2: Floor plans for typical townhouse layouts.

Fig 1: Aerial view of site plan.

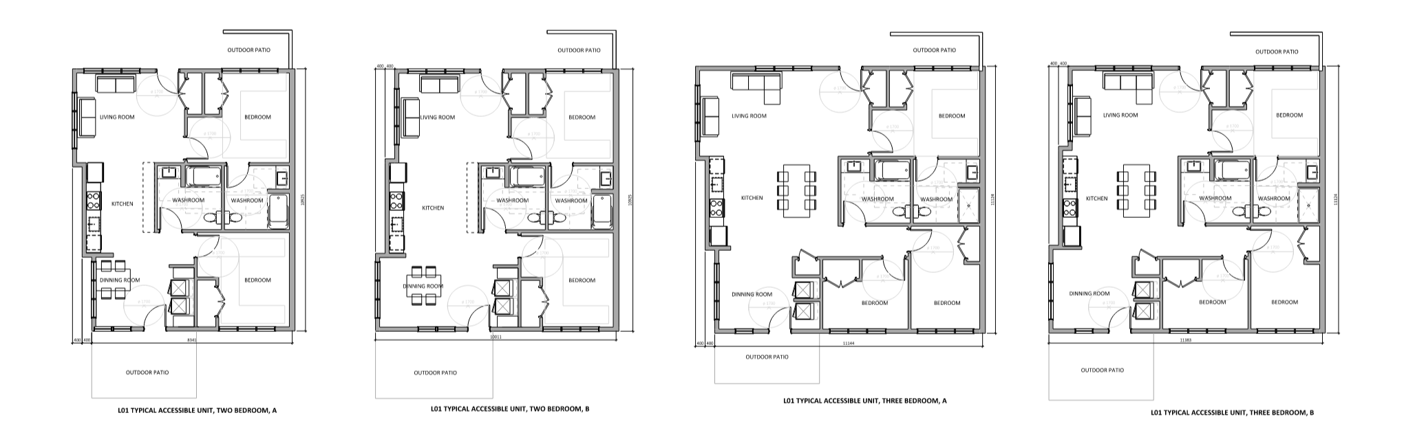
Fig 3: Floor plans for 2 & 3-bedroom accessible units.

Fig 4: Project Renderings.

Resources

Reports pertinent to this process will be made available for viewing here as they are published.

Frequently Asked Questions

  • HomeSpace owns and runs a portfolio of 927 units of housing across 35 properties throughout Calgary, serving over 1300 residents. In each of these properties, HomeSpace partners with a social service agency that provides wrap-around support to keep residents safely housed and connected with the resources they need to thrive. HomeSpace has a strong growth mandate to build more specialized, permanent, affordable housing to address the growing crisis in our city. Please explore this website for more information.

  • Families with children experiencing or at the risk of experiencing homelessness.

    The intent for this site is to provide homes for families with children for a temporary period of time (typically 6 months to 2 years), bridging the gap from homelessness to permanent housing. These families will be provided with wraparound on-site support to help them reach a level of stability that will allow them to gradually transition to market housing. Children go to school, parents secure stable employment and receive the care they need to address barriers to housing.

    Residents pay monthly rent based on income, are required to adhere to guest management and other house rules, and voluntarily participate in activities and support provided by our partner agency.

    Families must qualify based on need and income as determined by Calgary’s Coordinated Access & Assessment system. To learn more about this process, visit this link: https://www.calgaryhomeless.com/discover-learn/our-approach/system-planning/coordinated-access-assessment/

  • Transitional family housing provides homes for families with children for a temporary period of time (typically 1-2 years) until they are able to find more permanent housing. It specifically supports families at risk of or currently experiencing homelessness.

    Transitional housing offers support and stability so parents can concentrate on working and saving for a permanent home and children can focus on learning and growing.

    The primary difference between supportive housing and transitional housing is that residents in transitional housing are expected to “graduate” and to move on to a different type of housing.

  • In September 2023, City Council approved Home is Here: The City of Calgary’s Housing Strategy, outlining actions to address this city’s housing crisis and ensure every Calgarian has an affordable place to call home.

    As part of the strategy, Administration was directed to select two City-owned sites for developing transitional housing for families with children at risk of or experiencing homelessness. HomeSpace was awarded both sites following a successful Expression of Interest.

    Development is well underway on the first site in Whitehorn and has been seamless and positively received by the surrounding community. With completion expected in Spring 2026, HomeSpace is now excited to begin work on the second site in Evergreen.

  • Homelessness does not belong in anyone’s backyard – that is why it is so important we work together to end it. Ending homelessness needs community.

    When The City selected these sites, it took a wide number of considerations into account. This included: the size of the parcel so that it could accommodate a development that would support families with children, as well as proximity to public transit, schools, grocery stores and other commercial amenities.

    This location will ensure families are close to the resources they need.

    It takes every Calgarian’s commitment to seek change and to work together to create liveable, sustainable and inclusive communities. When we provide housing with support for families experiencing homelessness, they have the resources to rebuild their lives at home within a community of support.

  • No. Various studies show that supportive housing does not lead to increased rates of crime. Research was conducted in Vancouver, Toronto and Denver.

    City of Vancouver: http://vancouver.ca/people-programs/supportive-housing-in-your-neighbourhood.aspx & Supportive Housing Strategy for Vancouver Coastal Health’s Mental Health & Addictions Supportive Housing Framework, June 2007. City of Vancouver.

    deWolff, A. (2008). We Are the Neighbours: The Impact of Supportive Housing on Community, Social, Economic and Attitude Changes. Toronto, ON: Wellesley Institute.

    George Galster, Kathryn Pettit, Anna Santiago, and Peter Tatian. The Impact of Supportive Housing On Neighbourhood Crime Rates. Journal of Urban Affairs. Volume 24, Issue 3, pages 289–315, Fall 2002.

  • We have proposed ample parking on-site in alignment with the City of Calgary minimum requirements. Plus, many of our residents do not own cars. Due to proximity to various bus routes, this development is designed to be pedestrian-friendly, and should not impact parking in the area.

  • The proposed conceptual site plan indicates that the access point will be located on Eversyde Avenue SW, minimizing direct impact on the congested areas. As part of the Development Permit (DP) process, a Traffic Impact Assessment (TIA) will be conducted to evaluate the project's potential effects on traffic patterns. Although we do not anticipate that 45 units will markedly increase traffic, any necessary adjustments will be made based on the assessment's findings and recommendations provided by the City to ensure safe and efficient traffic flow. Traffic management considerations, including issues such as traffic signal timing, are thoroughly reviewed during the application process, with broader public realm matters overseen by City Administration.

    In tandem with these efforts, considerations for parking and housing dynamics are addressed to meet the needs of diverse groups. People experiencing precarious housing conditions have incredibly diverse circumstances and experiences, which includes those with access to or ownership of a vehicle. Visitor parking is thoughtfully integrated to accommodate guests, ensuring a balanced approach to access and usability. Feedback from residents will be forwarded to the City of Calgary Administration for further review and incorporation into their planning process.

  • A range of communication efforts have and will bee undertaken to keep stakeholders informed and engaged. These began with a review and update of website content through a communications audit. The project website includes the most up-to-date information about the project. Key interactions included meetings with the Calgary Community Association (CA), the Ward 13 Office, and local administration to discuss the project.

    Additionally, the project team is scheduled to attend a CA board meeting and engage in further discussions with CECA representatives.

    To engage the broader community, the project team has met with local stakeholders and will distribute flyers and go door-to-door to meet the residents in close proximity to the site.

    Engagement is very important to HomeSpace and we will continue throughout the entire application process.

  • The medium-density development proposal will not impact the community. In terms of aesthetics, the project team is committed to being mindful of the design to ensure it blends well with the surrounding environment, while still prioritizing affordability.

    More details regarding the design will be available during the Development Permit process, which will provide additional clarity on how the project will integrate with the community while maintaining the focus on affordable housing.

  • With each new project, HomeSpace commits to minimizing any disruption to the community. Information regarding the construction schedule, potential impacts, and mitigation measures will be provided closer to the Development Permit stage. Ongoing engagement with stakeholders will ensure concerns are addressed, and construction activities are carried out as smoothly as possible, with minimal impact on the surrounding area.

  • One housing development will not cause a sudden or massive influx of students. These projects typically add a small number of school-aged children relative to the overall community population.

    The City of Calgary also considered many factors when selecting this site, including working with the school boards and the Province of Alberta. When new housing is developed, school boards forecast enrolment and the Province funds new school construction and modernization based on these plans.

    The provincial government is currently investing heavily in new school capacity across Calgary, adding thousands of student spaces.

  • Housing is needed throughout Calgary. This includes market rentals, below-market units, and dedicated affordable housing.

    It is important that we welcome housing in all forms across the city to accommodate incoming and existing Calgarians. Affordable housing ensures families thrive, young people establish themselves, and seniors can age in place.

    Affordable Housing refers to units that are rented at below market rate, in this case managed by HomeSpace and our agency partners to support our residents.

  • We take pride in the design and maintenance of our buildings. Like all property owners, we are passionate about maintenance and upkeep to retain asset value. While the residents may be lower income, our buildings are designed to blend into the community and to not only be aesthetically pleasing but to also conform to the architectural character of the neighbourhood.

    Research shows that there is no negative impact on property values associated with social housing. Canadian research has been conducted on social housing sites in Vancouver, 7 social housing properties throughout British Columbia (Kelowna, Surrey, North Vancouver, Vancouver, Nanaimo, Esquimalt and Victoria), and Toronto.

    Calgary-specific research was conducted in early 2018 by Avison Young. This research looked at the prices of residential properties in close proximity to 2 current buildings that HomeSpace owns and operates with a partner agency that provides supports to our residents.

    This independent research found that there was no negative impact on residential property values in proximity to these 2 permanent supported housing apartment buildings. The analysis indicated that long-term residential values for dwellings located close to the properties are no different than value changes evident much farther away.

  • Please use the contactform at the bottom of this page to submit your comments or email newdevelopments@homespace.org.

  • HomeSpace does not rent directly to tenants, but accepts referrals for residents from Calgary’s Coordinated Access Assessment system. See the “Get Housing” section of this website for details about how to get on a list for affordable housing.

Contact Us

Have a comment about our development plans? Please reach out!